Produkte / Drehbankfutter,Planscheiben und Flansche


Ersatzbacken für Vierbacken-Drehfutter - WAB

Typ 3600 / 3700
Ausführung: Aufsatzbacken weich

Verwendung: Passend für 3604 bis 3744.

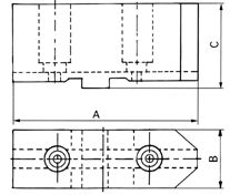
Größe D mm Bezeichnung A mm B mm C mm
125 WAB 64 22,0 38,5
160 WAB 78 25,0 41,5
200 WAB 90 27,0 43,5
250 WAB 106 32,5 51,5
315 WAB 120 37,0 55,0
400 WAB 140 42,0 64,5
500 WAB 140 42,0 74,5
630 WAB 160 52,0 82,0